Добро пожаловать в новый инвестиционный проект в динамично развивающемся районе Демирташ, Алания!
Демирташ – один из наиболее динамично развивающихся районов Аланьи, расположенный в 15 км от аэропорта Газипаша. Удобное транспортное расположение, современная инфраструктура, обилие новой недвижимости привлекают сюда все больше инвесторов. Это то редкое место в Турции, где виллу или таунхаус можно приобрести на первой береговой линии пока еще по демократичной цене. Также здесь достаточно развита городская инфраструктура, необходимая для жизни: магазины и аптеки, рестораны и кафе, транспортная доступность.
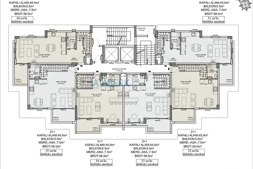
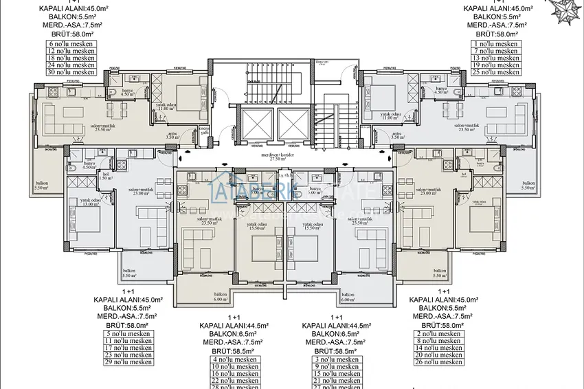
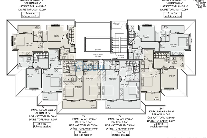
Проект будет находиться недалеко от центра района, вся районная инфраструктура в шаговой доступности. До побережья Средиземного моря – 2 км. Данный жилой комплекс будет состоять из одного блока, всего 36 квартир планировки 1+1 площадью 59 м2 и пентхаусы 2+1 площадью 110 и 114 м2. Проект будет реализован на территории 2 025 м2. В стоимость каждой квартиры входит качественная чистовая отделка, встроенная кухня с гранитной столешницей, сантехника, межкомнатные двери и все необходимые коммуникации. Современный дизайн и качественная чистовая отделка придают каждой квартире уникальный шарм. Архитектурный дизайн зданий гармонично сочетается с красивым ландшафтным дизайном территории.
Начало строительства: апрель 2023 года. Завершение строительства: декабрь 2024 года.
Предоставляется беспроцентная рассрочка до завершения строительства при первоначальном взносе 30%.
Свяжитесь с нами, чтобы узнать больше о данном проекте. Наши консультанты всегда готовы помочь вам сделать правильное решение!












